Surrey Village Homes
Stallion Drive and Silver Saddle Drive
| Rent / Month | Beds | Baths | Security Deposit |
|---|---|---|---|
| $2295 - $2695 | 3 - 4 | 2 - 2.5 | $1,000 |
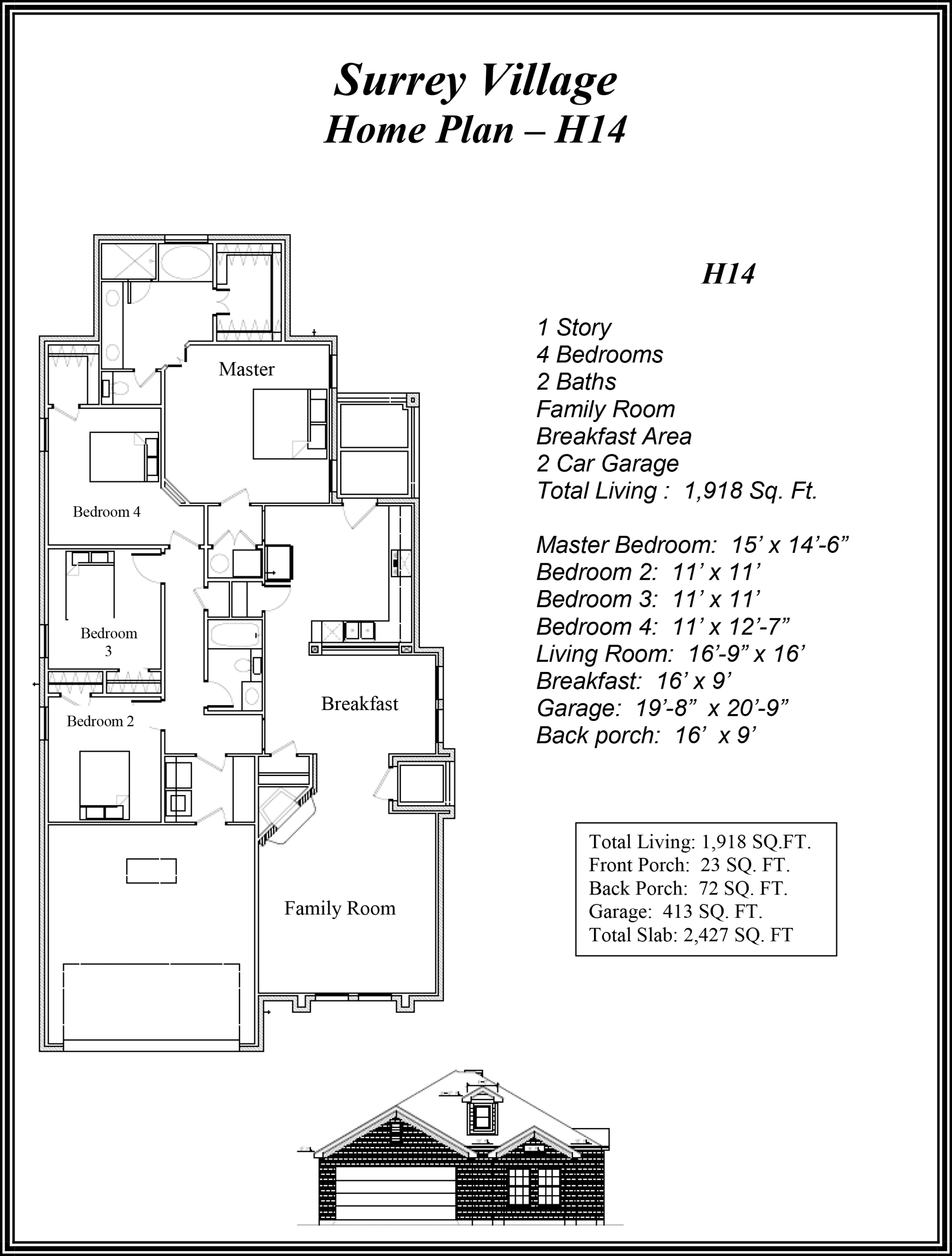
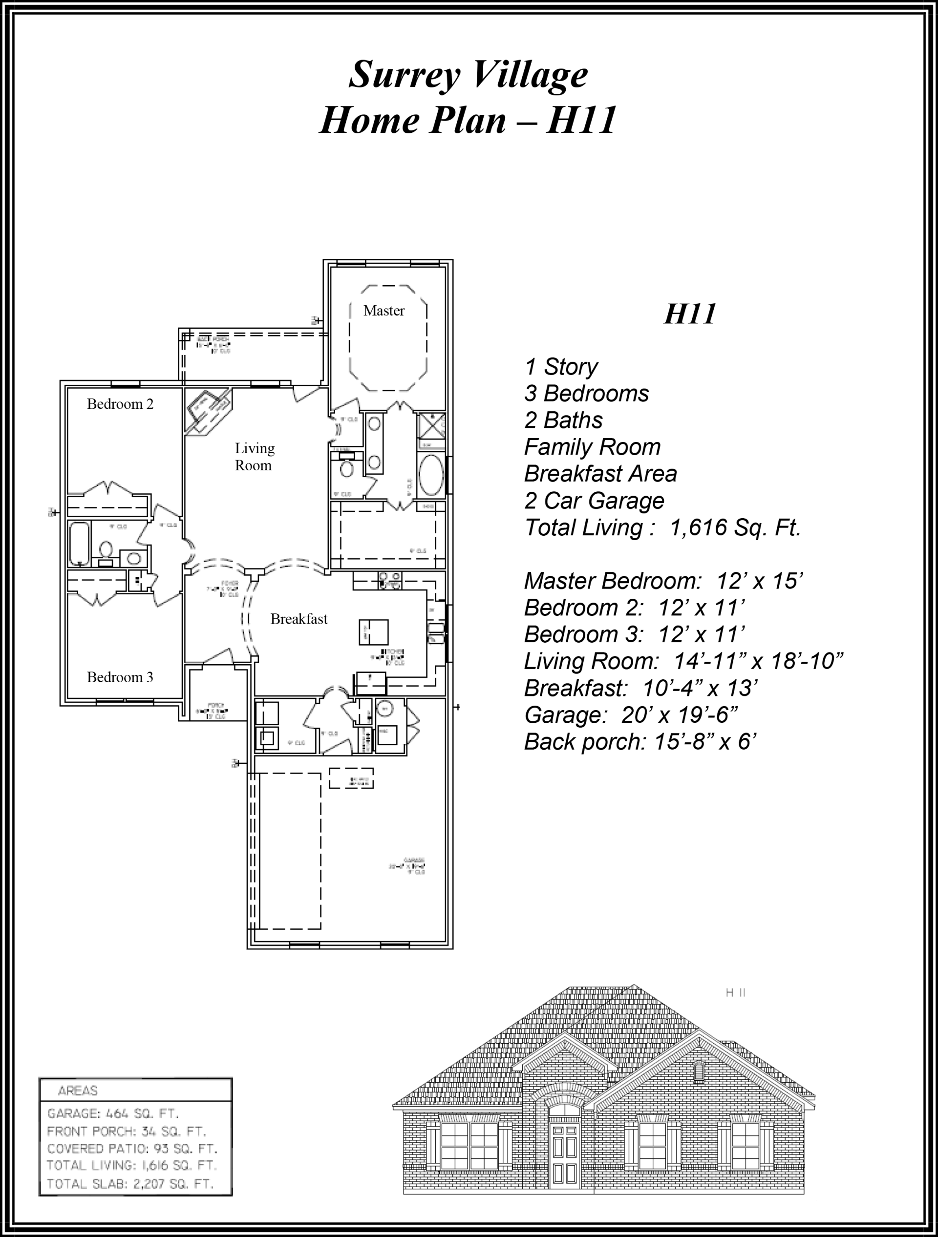
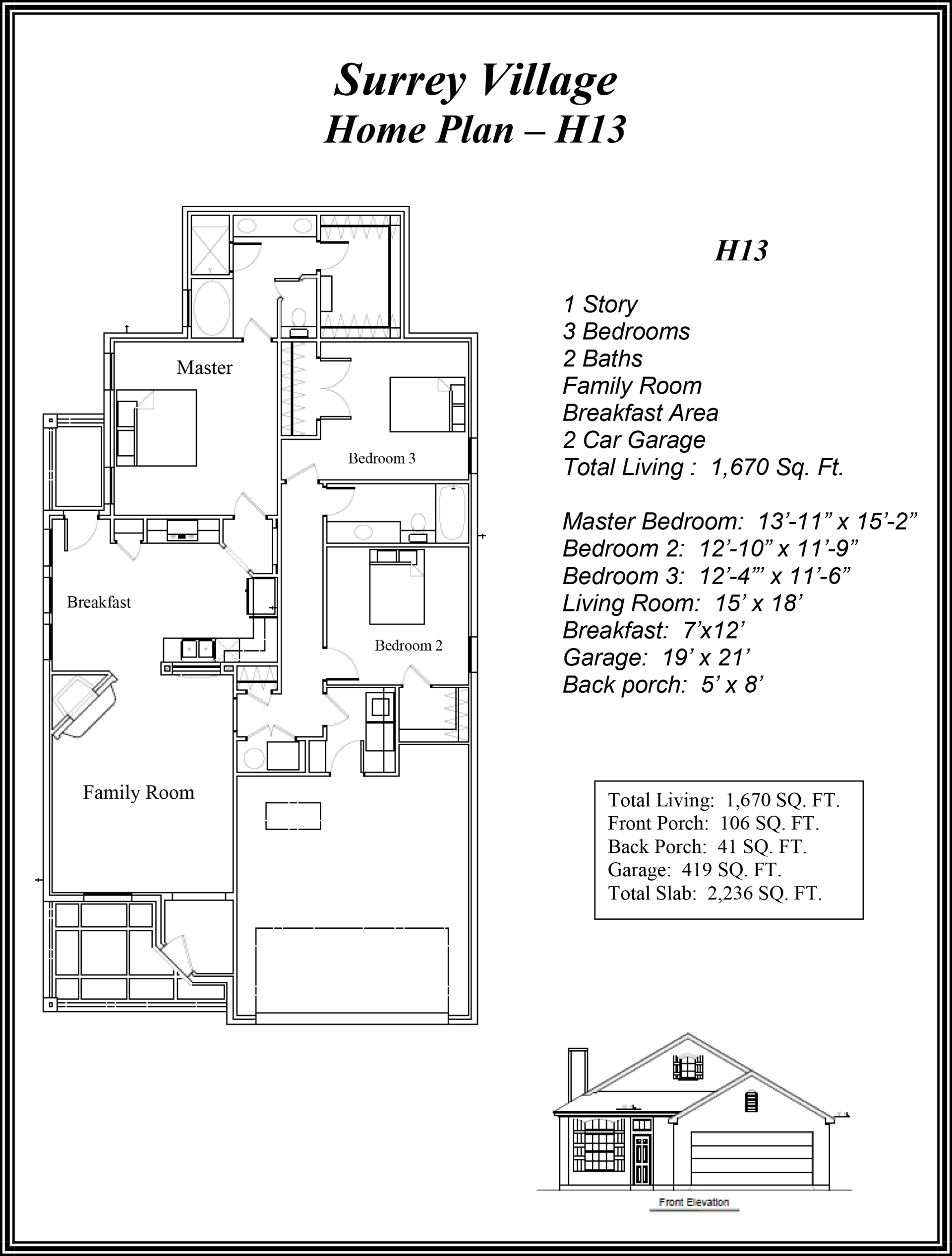
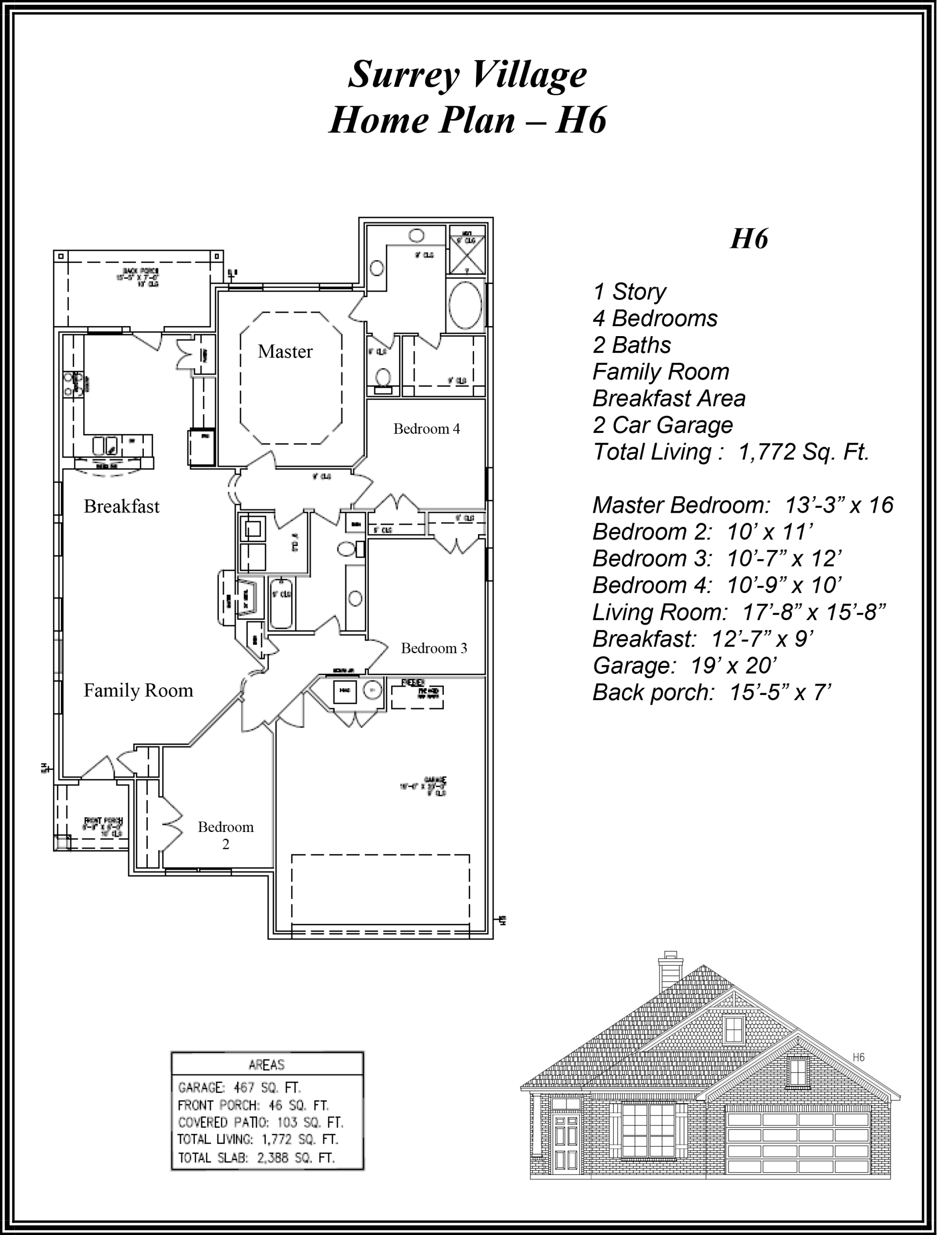
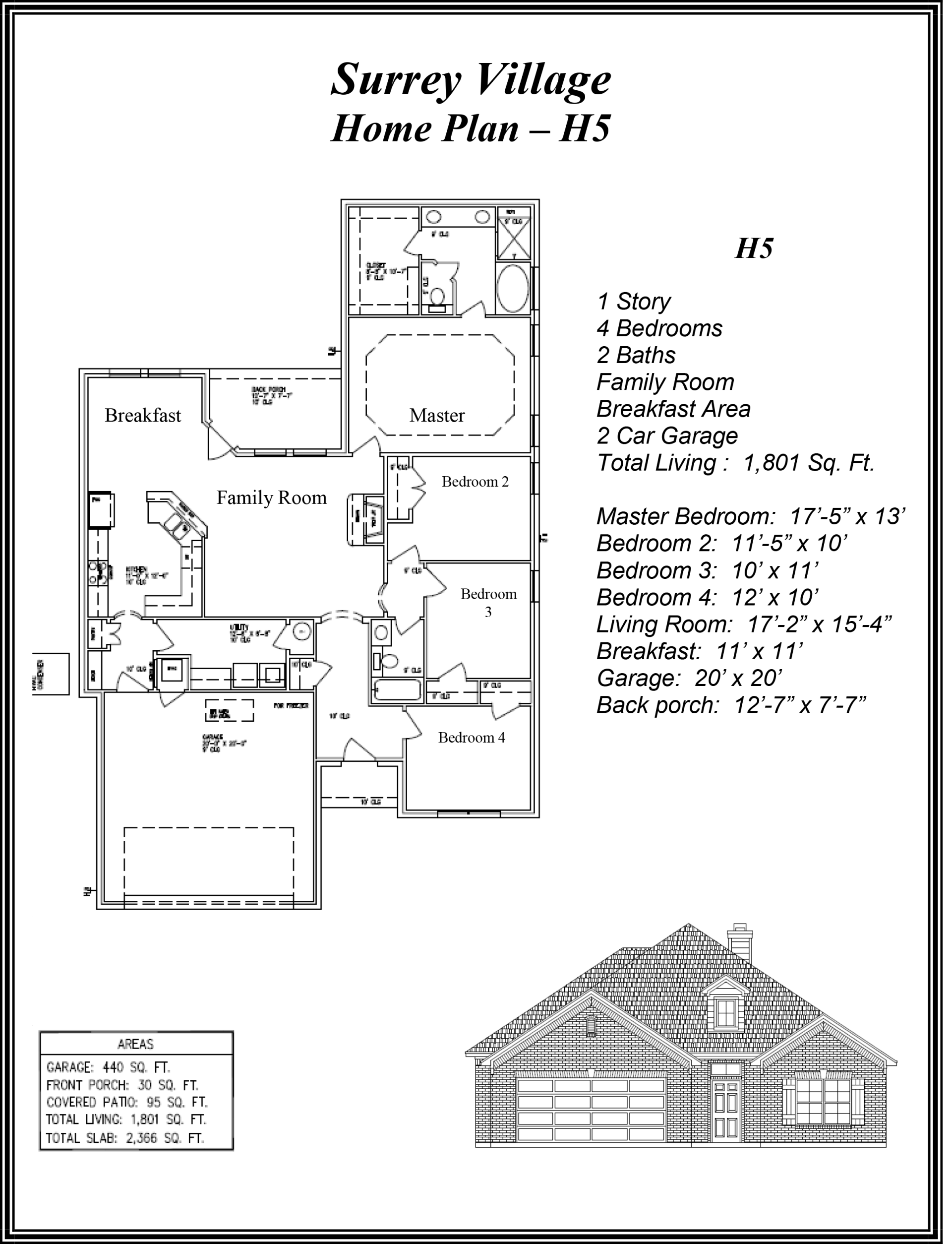
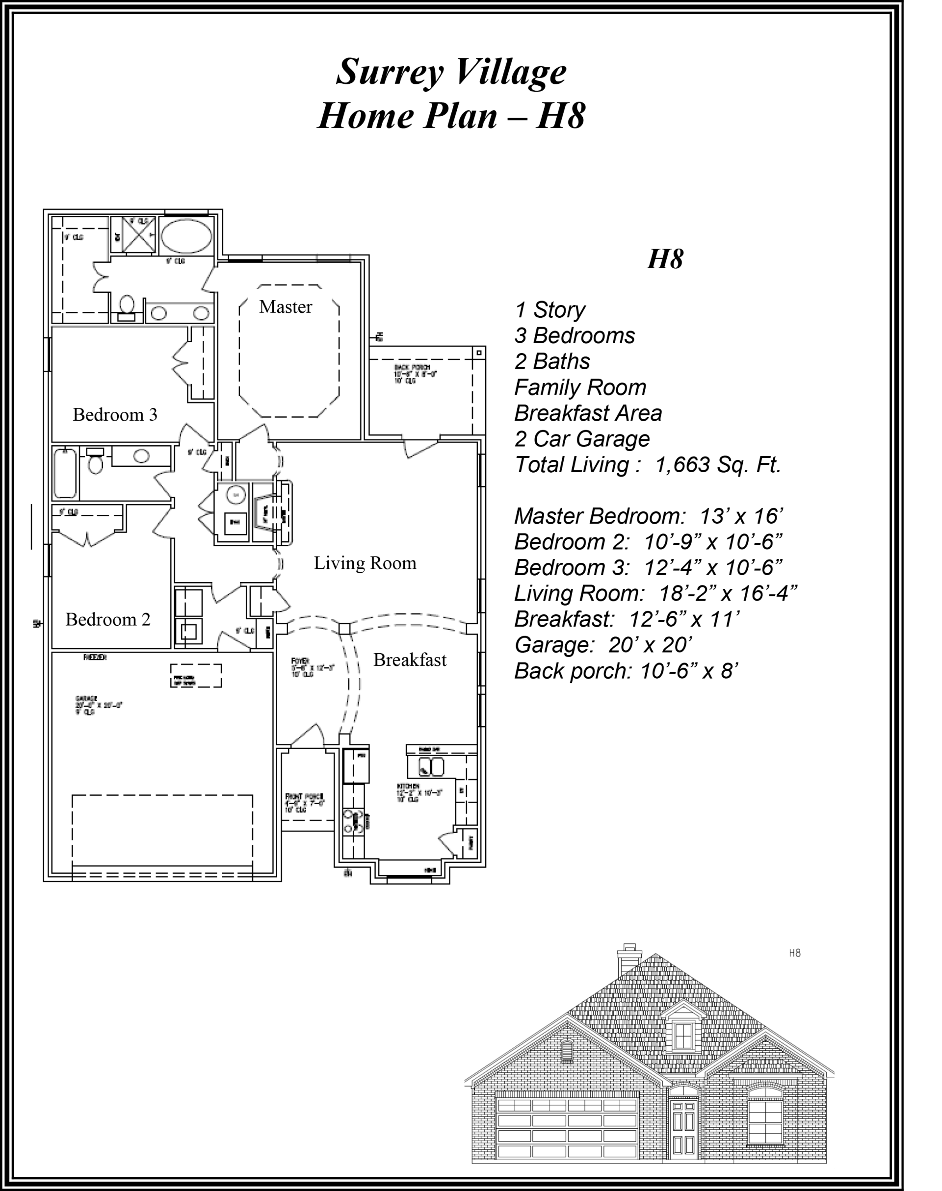
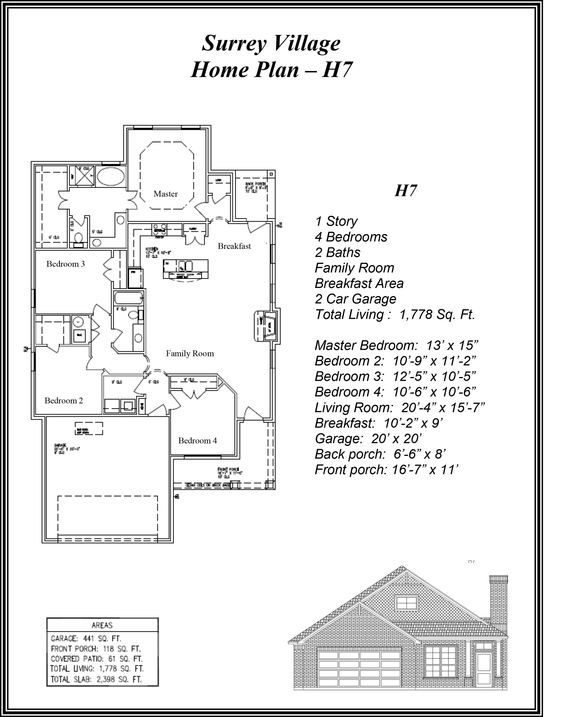
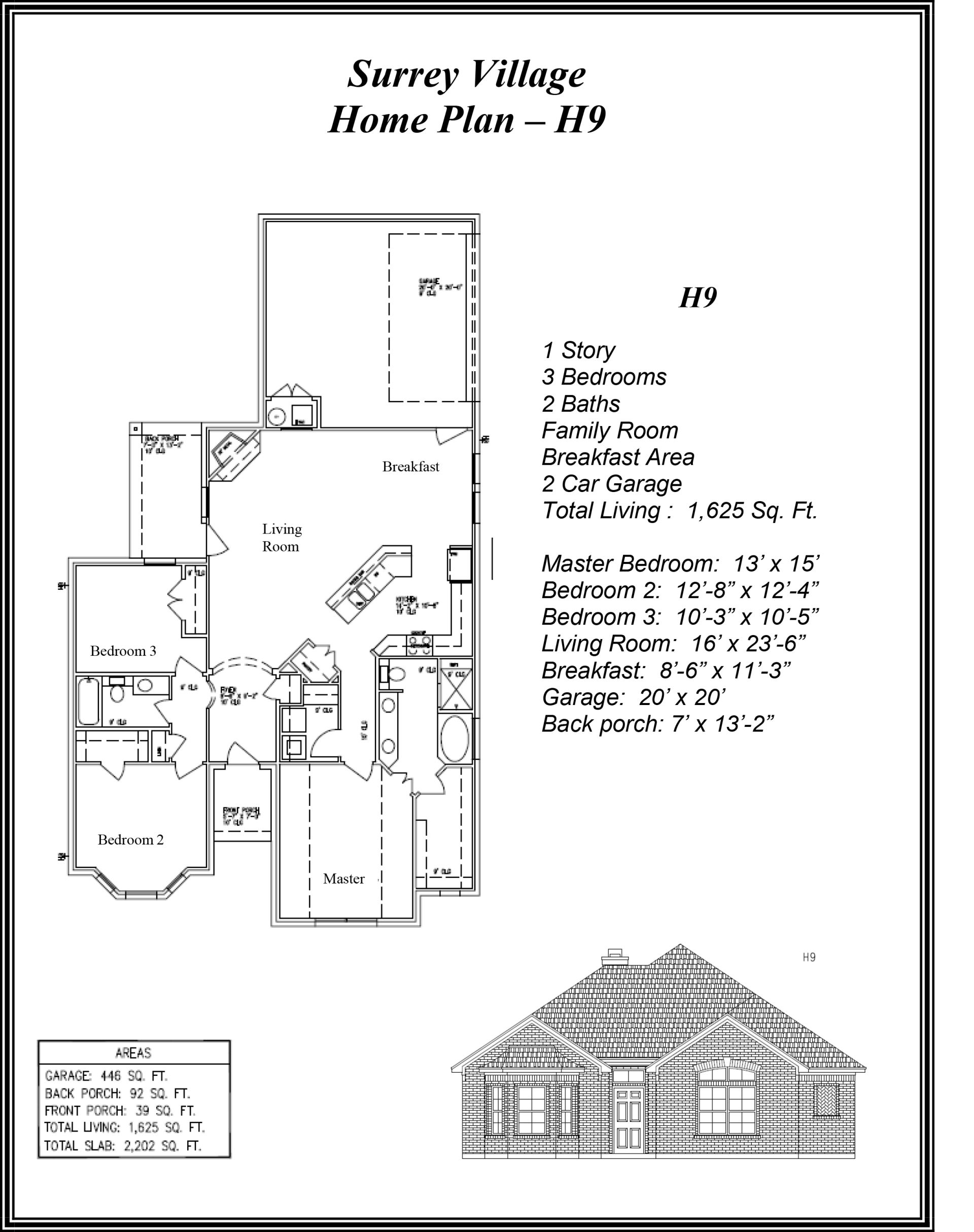
Choose one of our Luxury Custom Homes. You will see the difference as soon as you walk in the door. We have 3 and 4 bedroom homes with a total of 10 different floor plans. Each home has a 2 car garage and fenced backyard with sprinkler system.
Neighborhood
- Quiet country setting close to town.
- 8 miles to Baylor University
- 4.8 miles to Hillcrest Hospital
- 7.7 miles to Providence Hospital
- 4.7 miles to Central Texas Market Place
- 6.5 miles to Richland Mall
- 23 miles to SpaceX
- 16 miles to L-3
- 4.7 miles to Walmart
- 29 miles to Temple
- Halfway between Austin and Dallas (1hr 30min to each)
Amenities
- Sizes range from 1616 to 2221 Sq.Ft.
- Single Family Home
- Midway ISD
- Privacy fenced backyard
- Scored and Stained Concrete Floors throughout – no carpet
- Energy Star Approved with Spray Foam insulation in the attic
- Wood burning fireplace
- Large Kitchen includes: Granite counter tops, Custom cabinets with wine rack, Dishwasher, Microwave, Oven/Stove, Garbage Disposal, Pantry
- Washer/Dryer Hookups in separate utility room
- Master bathroom features: Walk-in closet, double vanity, oil rubbed bronze fixtures, separate shower & garden tub
- Covered back patio
Terms
- Rent: $2295 – $2695/month
- Application Fee: $45 per person 18 and over
- Security Deposit: $1000
- Pet Deposit: $350 per pet. Ask about our pet policy.






























